Vorhaben der Klassik Stiftung Weimar werden gefördert durch den Europäischen Fonds für regionale Entwicklung (EFRE) und den Freistaat Thüringen, vertreten durch die Staatskanzlei Thüringen, Abteilung Kultur und Kunst.

Instandsetzung der Servicebereiche im EG und Ertüchtigung der Hofflächen
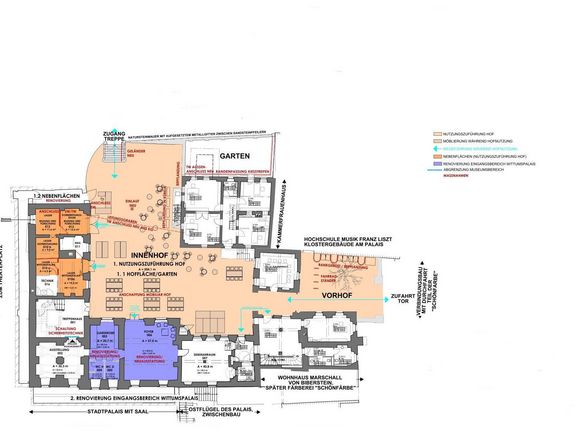
Bisher diente die Hofflächen ausschließlich der Erschließung der Einzelgebäude und zeigte im derzeitigen Zustand keine großen Aufenthaltsqualitäten.
Im Jahre 2018 zog das Referat kulturelle Bildung der Klassik Stiftung in die Gebäudeteile der Schönfärbe und des Kammerfrauenhaus des Wittumspalais ein. Zukünftig sollen hier auch im Hof stiftungsinterne und öffentliche Veranstaltungen mit kulturellem Programm angeboten werden.
Notwendige Maßnahmen hierfür sind die Verkehrssicherung des Freigeländes sowie eine Verbesserung der Infrastruktur auf den Hofflächen und Errichtung von Serviceflächen für Veranstaltungen in den angrenzenden Bereichen des Erdgeschosses.
Zur Steigerung des Besucherservices der KSW wird außerdem das Museumsfoyers neu ausgestattet und an heutige Anforderungen angepasst. Insbesondere ein neuer Tresen mit integrierten Informationsmedien wird zukünftig die Informationsangebote und Zugänglichkeit des Museums verbessern.
Im Rahmen einer Machbarkeitsstudie wurden die Möglichkeiten der vorhanden Räumlichkeiten in Bezug auf die neuen Nutzungen untersucht. Auf dieser Grundlage erfolgten die Entwurfs- und Genehmigungsplanungen sowie die Abstimmungen mit den Denkmalbehörden bis zur Einholung der Denkmalschutzrechtlichen Erlaubnis. Im November 2020 wurde mit der Umsetzung der Maßnahmen begonnen. Erforderliche Bauunterhaltsmaßnahmen, wie die Instandsetzung beschädigter Putz- und Sockelflächen sowie die Überarbeitung von Toren und Fenstern erfolgen zeitgleich.
Beginn Planung: Oktober 2019
Baubeginn: November 2020
Fertigstellung: September 2021
Die Maßnahme wird gefördert durch die Beauftragte der Bundesregierung für Kultur und Medien.


Architektin: Dr.-Ing. Anja Löffler, Architektur+Denkmalpflege, Gera
Restauratoren: Dipl.-Restaurator Sven Raecke, Erfurt



